Features

2
1
2
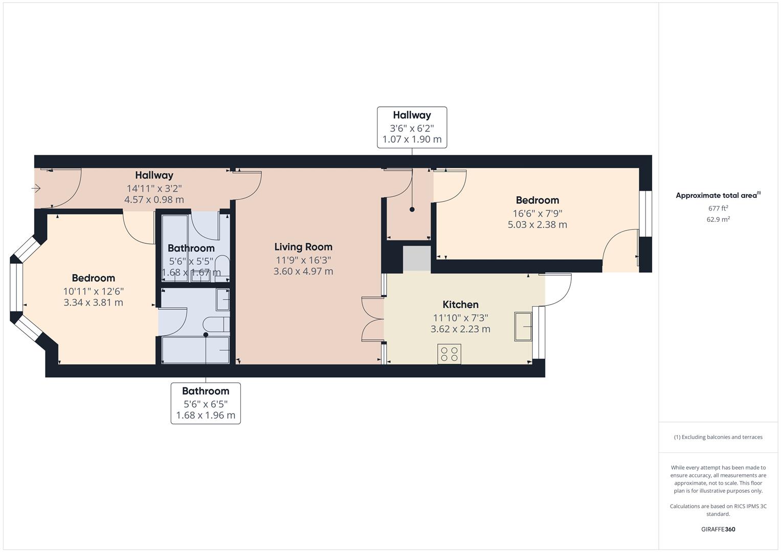
  • VIRTUAL TOUR AVAILABLE - FLOORPLAN
  • CONVERTED GRADE II LISTED BUILDING
  • SOUGHT AFTER BRUNSWICK TOWN
  • OFF HOVE SEAFRONT
  • TWO BEDROOMS TWO BATHROOMS
  • WEST ASPECT LOUNGE
  • SEPARATE WEST ASPECT KITCHEN
  • WEST ASPECT PATIO/GARDEN
  • OWN STREET ENTRANCE
  • SHARE OF FREEHOLD

Summary

A TWO DOUBLE BEDROOM flat in a CONVERTED GRADE II LISTED BUILDING in SOUGHT AFTER BRUNSWICK TOWN. The accommodation comprises entrance hall, WEST ASPECT LOUNGE, PATIO AND KITCHEN, TWO BATHROOMS, OWN STREET ENTRANCE, SHARE OF FREEHOLD, EPC C.

Full Description

LOWER GROUND FLOOR

ENTRANCE HALL
Laminated wooden flooring, radiator.

BEDROOM 1
Three East aspect windows, laminated wooden flooring, radiator, door to:

EN SUITE BATHROOM
Fitted with white suite comprising panelled bath with mixer tap and shower attachment, wall mounted wash hand basin with mixer tap, low level close coupled WC, tiled walls, tiled floor, extractor fan.

BATHROOM
Fitted with white suite comprising panelled bath with mixer tap and shower attachment, wall mounted wash hand basin with mixer tap, mirror fronted medicine cabinet over, low level close coupled WC, tiled walls, tiled floor, extractor fan.

LOUNGE/DINING ROOM
Multi frosted glass pane doors with frosted glass window to side to KITCHEN, door to LOBBY, laminated wooden flooring.

KITCHEN
Fitted with a range of eye level wall cupboards and base cupboard and drawer units, worktops with tiled surround, stainless steel single bowl single drainer with mixer tap, electric oven, gas hob with extractor fan over, plumbed space for washing machine, space for fridge/freezer, wall mounted 'Vaillant' combination boiler, tiled floor, four skylights, West aspect glass panel door with window to side to PATIO/GARDEN.

LOBBY
Ceiling coving, laminated wooden flooring, door to:

BEDROOM 2
Double aspect, West aspect window, glass pane door to PATIO/GARDEN, radiator.

EXTERNAL

PATIO/GARDEN
West aspect, split level, paved.

ADDITIONAL INFORMATION
Lease - Share of Freehold - 125 years from 1989
Maintenance - £110 per month Internal redec and carpets recently done, no major works planned
Ground Rent - £0
Council Tax Band - B - £1,910.06

Viewing
Please contact us on 01273 323000 if you wish to arrange a viewing appointment for this property, or require further information.

Energy Performance Certificate
Click here to view the Energy Efficiency Rating and Environmental Impact Rating for this property.

Disclaimer
Brices endeavour to maintain accurate depictions of properties in Virtual Tours, Floor Plans and descriptions, however, these are intended only as a guide and purchasers must satisfy themselves by personal inspection.

  • Save Delete
  • Street view
  • Map
  • Print
    Print Options
    Download the following document(s) Document 1
    Or
    Brief Printer friendly version (saves your ink!)
  • Brochure
IE8 Alert! Cookie Alert!

To get the best possible experience using our website we recommend you upgrade to a modern web browser. More info